Page 8 sur 12
Re: 766 DT
Posté : 06 mai 2021 09:49
par Oliv54
jean claude 2320 a écrit : ↑04 mai 2021 17:55
Pour la pression d'huile, c'est peut-être la broche du manocontact de pression qui est est sale. Tu la débranches, le voyant sera éteint au tableau mais la broche sera alimentée (+). Tu testes donc. Tu la rebranches si au tableau çà s'allume c'est ok. Par contre si çà reste allumé le moteur en marche c'est que le mano est hs. Le mano est vissé sur le bloc, à coté du filtre à huile.
Merci pour le conseil, je teste ça cette fds, j'ai prévu de travailler avec

Re: 766 DT
Posté : 11 mai 2021 13:03
par Oliv54
J'ai mesuré le fil arrivant à la sonde de pression d'huile, pas de tension...
Peut-être l'ampoule au tableau de bord H.S., je n'ai pas eu le temps de vérifier.
J'ai aussi oublié la photo pour le bouchon...
Mais voici une p'tite photo au travail
Re: 766 DT
Posté : 11 mai 2021 13:49
par jj
un conseil si tu utilises beaucoup la (ou le) rétro l'idéal est de bloquer le relevage mécaniquement
entre la pelle avant et celle ci tu a un véritable tracto-pelle
Re: 766 DT
Posté : 11 mai 2021 14:00
par jj
surtout pas simplement avec le blocage hydraulique il faut de la rigidification
Re: 766 DT
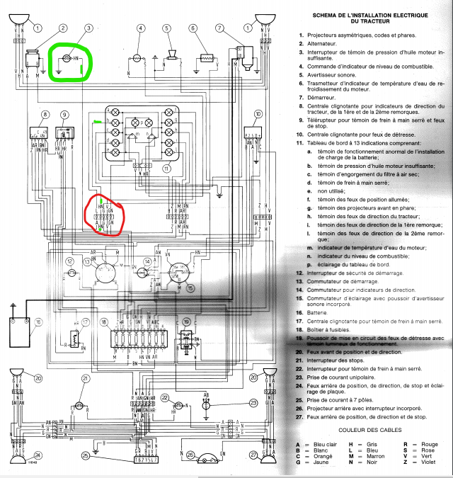
Posté : 11 mai 2021 15:21
par jean claude 2320
Bonjour Olivier, peut-être avant de voir au tableau de bord, regardes au raccordement rouge, gratter les cosses et wd40.

- schéma élect 766-Capture d’écran 2021-05-11 151603.png (268.9 Kio) Vu 2060 fois
Re: 766 DT
Posté : 11 mai 2021 15:36
par Oliv54
Salut JJ, oui effectivement c'est surtout au terrassement que je le destine dans un premier temps !
Qu'entend-tu par bloquer mécaniquement ? Y-a-t-il un accessoire pour le faire ?
Concernant la molette n°1 sur ta vue, j'ai essayé sans trop insister de la manœuvrer mais elle me semble grippée...
C'est pas le genre de truc dont se servent beaucoup les paysans
Elle peut servir de blocage hydraulique en position baissée ?
Bonjour Jean-Claude, je vais faire ça

Merci!
Re: 766 DT
Posté : 11 mai 2021 16:13
par jj
la molette règle la vitesse de descente et fermée à fond elle bloque le relevage
la tienne est vraisemblablement grippée (du dégrippant ou du WD40)
pour un blocage mécanique :
il faut empecher les bras de bouger
tu peux aussi le faire à partir de l'échelle du crochet
l'idéal si tu travailles intensément avec : un vétitable chassis comme une élagueuse
pour acceder à l'ampoule je t'ai déja une photo pour faire glisser le tableau de bord
Re: 766 DT
Posté : 11 mai 2021 16:25
par Oliv54
jj a écrit : ↑11 mai 2021 16:13
la molette règle la vitesse de descente et fermée à fond elle bloque le relevage
la tienne est vraisemblablement grippée (du dégrippant ou du WD40)
pour un blocage mécanique :
il faut empecher les bras de bouger
tu peux aussi le faire à partir de l'échelle du crochet
Mettre un tirant fixé à l'échelle d'un côté et sur le bras de l'autre ?
C'est à bricoler sois-même ou ça se trouve dans le commerce ?
l'idéal si tu travailles intensément avec : un vétitable chassis comme une élagueuse
pour acceder à l'ampoule je t'ai déja une photo pour faire glisser le tableau de bord
Re: 766 DT
Posté : 05 juil. 2022 09:10
par Oliv54
Bonjour tout le monde, j'espère que vous allez bien.
Je n'ai pas eu beaucoup de temps à consacrer à mon 766 mais par petites touches, j'avance!
Je viens de commander un pompe de DA et le bocal car en voulant changer le filtre... Surprise !
Plus de filtre ni rien d'autre dans le bocal d'origine...
Petite question, lorsque le pont avant est engagé, le tracteur est freiné au point mort et je trouve que le moteur force beaucoup si je fais un passage sur bitume... Un réglage à faire?!
Re: 766 DT
Posté : 05 juil. 2022 10:46
par jj
n'oublie pas de mettre un filtre
quels dimensions de pneus avant et arriere tu as ?
normalement les 766 ont le NOSPIN